香蕉视频app苹果
香蕉視頻app蘋果:
首(shou)頁
香蕉視頻app蘋果:
關于(yu)我們
香蕉視頻app蘋果:
公司簡介
香蕉視頻app蘋果:
企業(ye)理念
香蕉視頻app蘋果:
核(he)心服務
香蕉視頻app蘋果:
榮譽(yu)證書
香蕉視頻app蘋果:
新聞中(zhong)心
香蕉視頻app蘋果:
企業資訊
香蕉視頻app蘋果:
行業新(xin)聞
香蕉視頻app蘋果:
產(chan)品中心
香蕉視頻app蘋果:
不銹(xiu)鋼管
香蕉視頻app蘋果:
不銹鋼管件(jian)
香蕉視頻app蘋果:
不銹鋼(gang)法蘭
香蕉視頻app蘋果:
預制件(jian)加(jia)工
香蕉視頻app蘋果:
車間設備
香蕉視頻app蘋果:
生產(chan)設備
香蕉視頻app蘋果:
檢測設備(bei)
香蕉視頻app蘋果:
質保體系
香蕉視頻app蘋果:
體系認證
香蕉視頻app蘋果:
售后(hou)服務(wu)
香蕉視頻app蘋果:
聯系我們
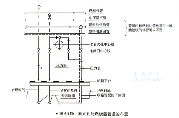
加熱爐管道布置設計工程實例
發布日期:2024-09-15 16:06:28 人氣:304
圓筒爐的管道布置實例(圖6-144~圖6-150)
箱式爐的管道布置實例(圖6-151)
香蕉視頻app蘋果:
常用腐蝕介質金屬選材參照表
香蕉視頻app蘋果:
鐵路槽車裝卸站的分類
猜你喜歡