室(shi)內(nei)采暖(nuan)管道施(shi)工圖(tu)主要(yao)表(biao)示(shi)一(yi)棟建筑物的(de)供暖(nuan)系統(tong),主要(yao)包括(kuo)平(ping)面圖(tu)、系統(tong)圖(tu)、詳圖(tu)。
1. 平面圖的(de)主(zhu)要內容
室內(nei)采暖平面圖主要表示管道、附件及(ji)散熱器在(zai)建筑物平面上的位置及(ji)相(xiang)互(hu)關系。
a. 查明建(jian)筑物內散熱器(qi)的平(ping)面位(wei)置、種類、片數及散熱器(qi)的安裝形式(shi)、方式(shi)。
各種散熱器(qi)的規(gui)格及數量(liang)應按以下規(gui)定(ding)標注(zhu):
①. 柱型散熱器(qi)只標注數(shu)量;
②. 圓翼型散熱器應標注根(gen)數(shu)和排數(shu);
③. 光排(pai)管散熱器(qi)應(ying)標(biao)注(zhu)管徑、長度(du)、排(pai)數及型號(A型和(he)B型)。
b. 查明水平干(gan)管(guan)(guan)(guan)的布(bu)置方(fang)式、干(gan)管(guan)(guan)(guan)上的閥門、固定(ding)支架(jia)、補償(chang)器等(deng)的平面位(wei)置、型號、干(gan)管(guan)(guan)(guan)管(guan)(guan)(guan)徑(jing)。
c. 通過立管編(bian)號查明系統(tong)立管的數(shu)量和(he)平面布置位置。
d. 在熱水(shui)采(cai)暖(nuan)系統平面圖中應(ying)查明(ming)膨脹(zhang)水(shui)箱(xiang)、自動排(pai)氣閥(fa)或集氣罐(guan)的(de)位置、型號(hao)、配管(guan)管(guan)徑及(ji)布(bu)置。對車間蒸汽采(cai)暖(nuan)管(guan)道(dao)、應(ying)查明(ming)疏水(shui)器的(de)平面位置、規(gui)格尺寸、疏水(shui)裝(zhuang)置組成等。
e. 查(cha)(cha)明(ming)熱(re)媒(mei)入口及入口地溝情(qing)況(kuang)。當熱(re)媒(mei)入口無節點(dian)詳(xiang)圖時,平面圖上(shang)一般將入口組成的(de)設(she)備如(ru)減壓(ya)閥、疏(shu)水器、分水器、分汽缸、除(chu)污器、控(kong)制閥、溫度(du)計(ji)、壓(ya)力(li)表、熱(re)量表等表示清楚(chu),并標注管徑、熱(re)媒(mei)來源(yuan)、流(liu)向、熱(re)工參數等。如(ru)果熱(re)媒(mei)人口主(zhu)要配件與(yu)國家標準(zhun)(zhun)圖相同時,平面圖則注明(ming)規格(ge)、標準(zhun)(zhun)圖號,可按(an)給定標準(zhun)(zhun)圖號查(cha)(cha)閱。當熱(re)媒(mei)人口有節點(dian)詳(xiang)圖時,平面圖則注明(ming)節點(dian)圖的(de)編(bian)號以備查(cha)(cha)閱。
2. 系統圖的主要內容
采暖(nuan)系統圖主要表示從熱煤人口(kou)至出(chu)口(kou)的采暖(nuan)管道,散(san)熱設(she)備及(ji)附件的空間位置和互(hu)相(xiang)之間的關系。
a. 查(cha)明(ming)管(guan)道系統中(zhong)干管(guan)與立(li)管(guan)之間及支(zhi)管(guan)與散(san)熱器之間的連接方式、閥(fa)門安裝(zhuang)位置(zhi)及數量,各管(guan)道管(guan)徑、坡度坡向、水平干管(guan)的標高(gao)、立(li)管(guan)編號、管(guan)道的連接方式。
b. 查(cha)明散熱器(qi)的規格型(xing)號、類型(xing)、安(an)裝形式(shi)(shi)及方式(shi)(shi)與(yu)片(pian)(pian)數(中(zhong)片(pian)(pian)和(he)足片(pian)(pian))、標高、散熱器(qi)進(jin)場形式(shi)(shi)(現(xian)場組對或成(cheng)品)。
c. 查明各種閥(fa)件、附件及(ji)設備(bei)在(zai)管道系統中的位(wei)置,凡(fan)是注有規格型(xing)號者,應(ying)與平面圖(tu)和材料明細表進(jin)行(xing)校對。
d. 查(cha)明(ming)熱煤人口裝(zhuang)置中各種(zhong)閥(fa)件(jian)、附件(jian)、儀表之間相(xiang)對關系及熱媒的來源、流向、坡(po)向、標高、管徑等。如有節點詳圖(tu)時,應(ying)查(cha)明(ming)詳圖(tu)編號及內容。
3. 詳圖的主要內容
采(cai)暖施(shi)工(gong)(gong)圖(tu)的(de)(de)(de)詳圖(tu)包括標(biao)準(zhun)圖(tu)和節(jie)點圖(tu)兩種。標(biao)準(zhun)圖(tu)是詳圖(tu)的(de)(de)(de)重(zhong)要(yao)組(zu)成部分。供水(shui)管、回水(shui)管與散熱器(qi)之間的(de)(de)(de)連接形式、詳細(xi)尺寸(cun)和安裝要(yao)求,均可(ke)用(yong)標(biao)準(zhun)圖(tu)表示。因(yin)此(ci),對(dui)施(shi)工(gong)(gong)技(ji)術人(ren)員來說,掌(zhang)握常用(yong)的(de)(de)(de)標(biao)準(zhun)圖(tu),熟(shu)知必要(yao)的(de)(de)(de)安裝尺寸(cun)和管道配件、施(shi)工(gong)(gong)做法,對(dui)于組(zu)織施(shi)工(gong)(gong)活(huo)動,控(kong)制施(shi)工(gong)(gong)質(zhi)量是十(shi)分必要(yao)的(de)(de)(de)。
采暖管道(dao)施工中(zhong)常用標(biao)準圖的(de)內容包括:
a. 膨脹水箱、冷凝水箱的(de)制(zhi)作、配件(jian)與安(an)裝(zhuang)。
b. 分汽(qi)罐、分水器(qi)、集水器(qi)的構造、制作與安裝。
c. 疏水器(qi)、減(jian)壓閥、減(jian)壓板的組成形(xing)式和安裝方法。
d. 散(san)熱器的連接與安(an)裝要(yao)求。
e. 采暖系(xi)統立管(guan)、支管(guan)、干(gan)管(guan)的連接形式。
f. 管道(dao)支架、吊架的(de)制作與安裝。
g. 集汽罐的制作與安裝。
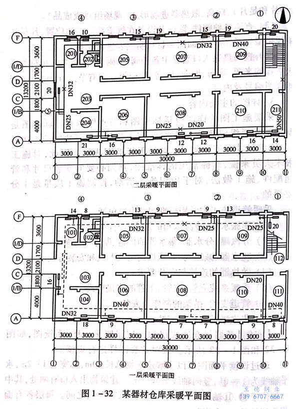
【實例】某(mou)器材(cai)倉庫底(di)層和二層采暖平面圖、系統圖,如圖1-32和圖1-33所示(shi)。試對這套(tao)圖樣進行(xing)識讀。

通過識讀平面圖(tu)可以了解(jie)建(jian)筑物(wu)總長(chang)30m,總寬為(wei)13.2m,水平軸線(xian)(xian)為(wei)①~?,豎向軸線(xian)(xian)為(wei)A~F.建(jian)筑物(wu)出(chu)人口有兩處,其中(zhong)一處位(wei)于⑩、?軸線(xian)(xian)之間,另一處在C、①軸線(xian)(xian)之間。每(mei)層各有面積(ji)不等的約11個房間。
在建筑物(wu)的兩個入口(kou)處(chu),散熱器布置在門口(kou)墻壁(bi)上,其余(yu)的散熱器全部布置在各房間(jian)的窗臺下(xia)。散熱器的片(pian)數均注在散熱器圖例上。
通過(guo)查閱(yue)系(xi)統圖得(de)知(zhi),本例為(wei)(wei)(wei)雙管(guan)(guan)(guan)(guan)上分(fen)式(shi)熱水(shui)采(cai)暖(nuan)系(xi)統,熱媒干(gan)管(guan)(guan)(guan)(guan)管(guan)(guan)(guan)(guan)徑(jing)(jing)為(wei)(wei)(wei)DN50,標高(gao)為(wei)(wei)(wei)-1.40m,由(you)南向北穿過(guo)A軸線外墻(qiang)進(jin)入111號(hao)房間,在(zai)(zai)(zai)(zai)A~?軸線交角處登高(gao),在(zai)(zai)(zai)(zai)總立(li)管(guan)(guan)(guan)(guan)上安裝(zhuang)一控制閥門。總立(li)管(guan)(guan)(guan)(guan)登高(gao)至二層(ceng)6.00m,在(zai)(zai)(zai)(zai)天棚下沿墻(qiang)敷(fu)設。干(gan)管(guan)(guan)(guan)(guan)管(guan)(guan)(guan)(guan)徑(jing)(jing)依次為(wei)(wei)(wei)DN50、DN40、DN32、DN25、DN20.本例共有8根立(li)管(guan)(guan)(guan)(guan),管(guan)(guan)(guan)(guan)徑(jing)(jing)均為(wei)(wei)(wei)DN20.立(li)管(guan)(guan)(guan)(guan)為(wei)(wei)(wei)雙管(guan)(guan)(guan)(guan)式(shi),采(cai)用三通和四(si)通與散熱器連接。回水(shui)干(gan)管(guan)(guan)(guan)(guan)的起(qi)始(shi)端(duan)在(zai)(zai)(zai)(zai)103房間,標高(gao)為(wei)(wei)(wei)0.200m,沿墻(qiang)在(zai)(zai)(zai)(zai)底層(ceng)地面拖地敷(fu)設,管(guan)(guan)(guan)(guan)道(dao)坡度與回水(shui)流(liu)動方向為(wei)(wei)(wei)同(tong)向。回水(shui)干(gan)管(guan)(guan)(guan)(guan)在(zai)(zai)(zai)(zai)103房間過(guo)門處,返低至地溝繞(rao)過(guo)大(da)門。干(gan)管(guan)(guan)(guan)(guan)管(guan)(guan)(guan)(guan)徑(jing)(jing)依次為(wei)(wei)(wei)DN20、DN25、DN32、DN40、DN50.干(gan)管(guan)(guan)(guan)(guan)在(zai)(zai)(zai)(zai)111房間返低-1.400m 流(liu)至室外管(guan)(guan)(guan)(guan)道(dao)。
在供水(shui)、回水(shui)立(li)管上(shang)均設有閥(fa)門,但①立(li)管上(shang)未裝,而在散熱器(qi)的支管上(shang)安裝閥(fa)門。
由圖紙得(de)知(zhi),干管上(shang)設有(you)(you)固(gu)定支架,供水干管上(shang)設有(you)(you)4個,回水干管上(shang)設有(you)(you)3個。管道(dao)活動支架通常在施工圖上(shang)是(shi)不顯示的,施工人員應按有(you)(you)關規范(fan)要求,在現(xian)場選定和設置。
在識(shi)讀平面(mian)圖和系統圖的同時,需要查閱部分(fen)標準圖,本(ben)例(li)中集(ji)氣罐(guan)的制作與安裝,如圖1-34所示,散熱器與立支管的連接(jie),如圖1-35所示。


