浙江至(zhi)德鋼業有限公司技術人員參加(jia)評審某設計(ji)時,發(fa)現某固定直爬梯沒有設置護籠,不符合規范要求。
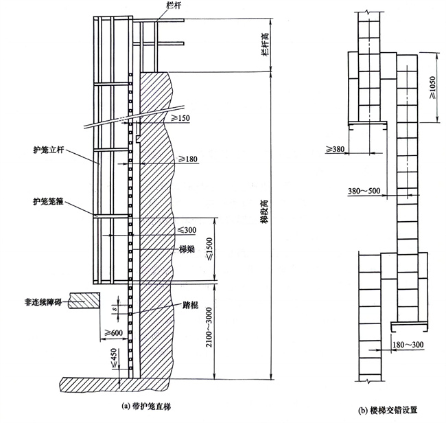
按照(zhao)SH/T 3011《石(shi)油化(hua)工工藝裝(zhuang)置布(bu)置設計規范》要求:高(gao)度(du)超(chao)過3m的直(zhi)梯(ti)(ti)應(ying)設置安(an)全護籠(long),護籠(long)下端距地(di)面或平(ping)臺不應(ying)小于2.1m,護籠(long)上端高(gao)出平(ping)臺面,應(ying)與欄(lan)桿高(gao)度(du)一致(zhi)。固定式鋼直(zhi)梯(ti)(ti)示意圖(tu)見(jian)圖(tu)14.2。


GB 4053.1《固(gu)定式(shi)鋼梯及平臺安(an)全要求 第1部(bu)分(fen):鋼直(zhi)梯》的要求如下。
①. 單段梯(ti)高宜不大于10m,攀(pan)登高度大于10m時(shi)宜采用多段梯(ti),梯(ti)段水(shui)平交錯布置(zhi),并(bing)設梯(ti)間平臺,平臺的(de)垂直間距宜為(wei)6m。單段梯(ti)及多段梯(ti)的(de)梯(ti)高均應不大于15m。
②. 梯段(duan)高(gao)度大(da)于3m時宜設置(zhi)(zhi)安(an)(an)全護籠(long)。單梯段(duan)高(gao)度大(da)于7m時,應設置(zhi)(zhi)安(an)(an)全護籠(long)。當攀登高(gao)度小于7m,但(dan)梯子頂部在地(di)面(mian)、地(di)板或屋(wu)頂之上高(gao)度大(da)于7m時,也(ye)應設置(zhi)(zhi)安(an)(an)全護籠(long)。
③. 當護籠用(yong)于(yu)多段梯(ti)時,每個梯(ti)段應與(yu)相(xiang)鄰的梯(ti)段水平(ping)交錯并有足夠(gou)的間(jian)距(ju),設有適(shi)當空間(jian)的安(an)全(quan)(quan)進、出引導(dao)平(ping)臺,以(yi)保護使用(yong)者的安(an)全(quan)(quan)。

