以某煉油項目(mu)裝(zhuang)置(zhi)(zhi)作為一個實例,列出了在已(yi)有工廠(chang)中(zhong)開展新裝(zhuang)置(zhi)(zhi)平(ping)面布置(zhi)(zhi)設計(ji)(ji)的(de)步驟。通過例子展示了某些推薦的(de)做(zuo)法(fa)和布置(zhi)(zhi)設計(ji)(ji)的(de)原則(ze)。
一(yi)、裝(zhuang)置設備布置設計要(yao)求的一(yi)般資料
當開始做裝置設備平面布置圖時,需(xu)要從工(gong)程設計項目組(zu)及工(gong)藝、設備、儀表、電氣(qi)、總圖等專業得(de)到下列資(zi)料。
①. 新裝(zhuang)置區(qu)域(yu)附(fu)近現場資料(在某些設計單位,這(zhe)些條件由總圖(tu)專(zhuan)業供(gong)給管道(dao)專(zhuan)業)。
a. 工(gong)程設計資料(包括新裝置區域(yu)現(xian)場(chang)平(ping)面圖,地上或地下設施,水(shui)、電(dian)、汽等公用工(gong)程條(tiao)件,選用的(de)防火規范、安全距離、噪聲(sheng)控制(zhi)的(de)標準等)。
b. 常年最小(xiao)頻(pin)率(lv)風向(xiang)。
c. 裝(zhuang)置(zhi)及進出(chu)管(guan)線建議的位置(zhi)。
d. 電纜進出口位置。
e. 新(xin)裝(zhuang)置區附(fu)近的道(dao)路、鐵路等交通條件及其詳圖。
f. 裝置的基準點(dian)位置。
g. 裝置的指北(bei)向。
h. 檢修用吊車的能(neng)力(li)和尺(chi)寸。
i. 消防車通道。
②. 從其他專業得到的資(zi)料。
a. 工藝流程(cheng)圖(tu)或管(guan)道-儀表流程(cheng)圖(tu)。
b. 設備(bei)表及設備(bei)尺(chi)寸(cun)(cun)。例(li)如:大型儲(chu)罐的直徑、高度或容量(liang);加熱(re)爐(lu)(lu)的外形(xing)(xing)尺(chi)寸(cun)(cun)、形(xing)(xing)式,煙囪是獨立的還(huan)是安裝在加熱(re)爐(lu)(lu)頂(ding)部,煙囪尺(chi)寸(cun)(cun);壓縮機的形(xing)(xing)式、外形(xing)(xing)尺(chi)寸(cun)(cun),其密封(feng)油(you)、潤滑油(you)系(xi)統的布置,輔助(zhu)設備(bei)的布置;泵的形(xing)(xing)式、外形(xing)(xing)尺(chi)寸(cun)(cun),驅動機的形(xing)(xing)式和要求;各種非定型設備(bei)的規格(ge),包括塔器、換熱(re)器、容器等。
c. 設(she)備安裝和(he)檢修要求(qiu)。例如:塔(ta)的(de)(de)最小(xiao)安裝高(gao)度(從(cong)地(di)面(mian)至(zhi)塔(ta)底封(feng)頭(tou)切(qie)(qie)線(xian)處);有重力(li)流(liu)或固體卸料(liao)的(de)(de)立(li)(li)式(shi)或臥式(shi)容器(qi)的(de)(de)安裝標高(gao)要求(qiu)(立(li)(li)式(shi)的(de)(de)指(zhi)底部(bu)封(feng)頭(tou)切(qie)(qie)線(xian)處至(zhi)地(di)面(mian)的(de)(de)距(ju)(ju)離,臥式(shi)的(de)(de)指(zhi)儲槽(cao)底部(bu)至(zhi)地(di)面(mian)的(de)(de)距(ju)(ju)離);換熱(re)器(qi)管束抽芯所(suo)需(xu)空間;壓縮機、泵或其他回轉設(she)備拆卸和(he)更換零部(bu)件的(de)(de)要求(qiu)。
③. 空冷器(qi)形(xing)式和(he)外形(xing)尺寸(cun)需要和(he)工藝專業協商,因(yin)為空冷器(qi)通常(chang)安裝(zhuang)在管廊的(de)(de)上方,管廊的(de)(de)尺寸(cun)要和(he)空冷器(qi)的(de)(de)規格(ge)相適應。
通常在(zai)管廊的(de)(de)下方布(bu)置泵(beng)(beng),需要泵(beng)(beng)的(de)(de)型號、規格、外(wai)形(xing)尺寸(cun)及泵(beng)(beng)的(de)(de)吸入口和排出口管線連接尺寸(cun),如能提供樣本更好。
二、對(dui)工(gong)藝流(liu)程圖的研(yan)究
作平面布置(zhi)圖時,工藝流程(cheng)圖已準備好(圖5-97)。

請工藝(yi)(yi)設計人員介紹裝置的(de)工藝(yi)(yi)流(liu)程,并研究(jiu)出直接(jie)影(ying)響設備布置的(de)若(ruo)干結論,例如下面(mian)所列(lie)內(nei)容。

①. 設備布置要(yao)順流程。原(yuan)油加(jia)料泵(beng)P-101要(yao)緊貼裝(zhuang)置西邊界管(guan)線進出口“A”。因為原(yuan)油管(guan)線從“A”處進入裝(zhuang)置(圖5-98)。
②. 泵(beng)應(ying)布置(zhi)在相應(ying)的設備附近,以免泵(beng)吸入管線壓降太大。
③. 要滿足(zu)大型設(she)備(bei)布(bu)置上的要求。如加熱(re)爐(lu)F-101,要保(bao)證安全距離。另外,燃料管(guan)線用(yong)分配臺(tai)分配,進口接管(guan)多,故爐(lu)子周(zhou)圍要有足(zu)夠的空間。
④. 關鍵管(guan)(guan)(guan)線(xian)的(de)(de)柔(rou)性(xing)要(yao)求,在(zai)布置(zhi)階段請應力分(fen)析人員(yuan)協(xie)助,例如:加熱(re)爐的(de)(de)轉油(you)管(guan)(guan)(guan)線(xian)是高(gao)溫合(he)金管(guan)(guan)(guan)線(xian),要(yao)盡可能短(duan),且沒有袋(dai)形;T-101塔(ta)底管(guan)(guan)(guan)線(xian)是高(gao)溫的(de)(de),要(yao)考慮(lv)管(guan)(guan)(guan)線(xian)的(de)(de)柔(rou)性(xing)以及(ji)備用泵的(de)(de)熱(re)的(de)(de)和(he)冷的(de)(de)工(gong)況;進出汽(qi)提塔(ta)T-102和(he)T-103的(de)(de)管(guan)(guan)(guan)線(xian)盡可能短(duan);汽(qi)提塔(ta)至火炬系統的(de)(de)泄壓(ya)管(guan)(guan)(guan)線(xian)應盡可能短(duan)。
⑤. 設備布置要考(kao)慮配(pei)管(guan)(guan)要求,例如(ru):從(cong)T-101至(zhi)E-115的架空管(guan)(guan)線(xian)應避免有(you)(you)袋形,在滿足管(guan)(guan)線(xian)柔性和塔膨脹(zhang)的前提(ti)下(xia),管(guan)(guan)線(xian)走向應簡單些;從(cong)E-115至(zhi)V-101的冷凝液管(guan)(guan)線(xian)應避免有(you)(you)袋形;從(cong)V-101至(zhi)壓縮機C-101的氣體管(guan)(guan)線(xian)盡可能短,避免有(you)(you)袋形。
三、平(ping)面布置(zhi)圖的(de)編制(zhi)
在完成工藝(yi)流程圖的研究后,進一(yi)步檢查新收到的各(ge)專業的資料是否有其他的要求。開始平面布置(zhi)圖的設計。
①. 如工程(cheng)沒有特殊的(de)要求,裝置的(de)操作通(tong)道、檢修通(tong)道及(ji)平臺(tai)的(de)設置等均按設計規(gui)范(fan)確(que)定,下(xia)列各(ge)項在設計中(zhong)應予遵循(xun)。
a. 裝置檢修時,需汽車(che)(吊車(che))通(tong)過的(de)主要檢修通(tong)道上(shang)方(fang)最(zui)小凈空4.5m。
b. 裝置四(si)周環形道路上方(fang)最小(xiao)凈(jing)空5.0m,鐵軌上方(fang)最小(xiao)凈(jing)空5.5m(SH 3012-2000)。
c. 泵的操作溫度(du)340℃或340℃以上(shang)時,不能布(bu)置在(zai)管廊(lang)(lang)下(xia),應布(bu)置在(zai)距管廊(lang)(lang)外(wai)側(ce)3m以外(wai)。泵的操作溫度(du)在(zai)340℃以下(xia)時,可布(bu)置在(zai)管廊(lang)(lang)下(xia),必須考慮泵和驅動機的檢修,泵上(shang)方(fang)最小凈空3m。
d. 通常,空冷(leng)器布置在管廊上。
e. 儲(chu)存烴類(lei)設備的(de)(de)支架及輸送烴類(lei)管(guan)(guan)道的(de)(de)管(guan)(guan)廊支柱應進(jin)行防火(huo)保護的(de)(de)處理。
②. 要(yao)考(kao)慮(lv)運輸、安(an)裝設(she)備的位置(zhi)。道路或通道要(yao)有足夠的空間,以滿(man)足大(da)型設(she)備的運輸和安(an)裝。
③. 進行初步的設(she)(she)備布(bu)置(zhi)。如圖5-98所(suo)示(shi),用方塊的形式繪出管廊、加熱爐、蒸餾塔、框架、控制室等的位置(zhi)。這(zhe)張布(bu)置(zhi)圖討論通(tong)過,即可(ke)開(kai)始(shi)設(she)(she)計正式的平面(mian)布(bu)置(zhi)圖。
④. 繪制平面布置圖的步驟。
a. 在裝置(zhi)設備布置(zhi)區域內確定管廊的布置(zhi)。
b. 加熱爐的布置。
c. 控(kong)制室的(de)布(bu)置(zhi)。
d. 主要設備的布置,包括分餾塔、空冷器(qi)(qi)、大型容器(qi)(qi)、壓(ya)縮機、泵等。
全部(bu)設(she)備(bei)布(bu)置完成后,經校(xiao)驗,并適(shi)當調整(zheng),使用計算機繪出正式平面布(bu)置圖。
四、裝置管廊的布置
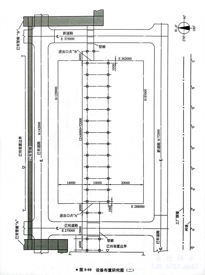
裝置(zhi)管(guan)廊的位置(zhi)必須優先考(kao)慮,因為(wei)它會影響設備的布置(zhi)。
圖5-99表示了新(xin)裝(zhuang)置管廊(lang)的(de)(de)位置與已(yi)有管廊(lang)的(de)(de)關(guan)系,下面敘述如何(he)布置管廊(lang)。

①. 首先應(ying)與土建協商(shang)確定結構(gou)材料,是使用鋼筋(jin)混凝土的(de)還(huan)是鋼結構(gou)的(de)。鋼筋(jin)混凝土的(de)較為經(jing)濟(ji)。
②. 管(guan)廊的(de)(de)(de)柱距6m,可滿足DN80和DN80以上的(de)(de)(de)管(guan)線,不需(xu)要中間(jian)支承。管(guan)廊下兩個柱距之間(jian)可布置兩臺中型的(de)(de)(de)泵。
③. 管(guan)(guan)廊(lang)的(de)寬度,首先應明確管(guan)(guan)廊(lang)上是(shi)否(fou)安裝(zhuang)空冷(leng)(leng)(leng)器(qi)。若(ruo)安裝(zhuang)空冷(leng)(leng)(leng)器(qi),管(guan)(guan)廊(lang)的(de)寬度由空冷(leng)(leng)(leng)器(qi)的(de)管(guan)(guan)長決定。若(ruo)管(guan)(guan)廊(lang)上沒有(you)空冷(leng)(leng)(leng)器(qi),則作完管(guan)(guan)線走向(xiang)草圖后,根據管(guan)(guan)子排列寬度,再預留20%的(de)裕量[全廠性管(guan)(guan)廊(lang)或(huo)管(guan)(guan)墩上(包括穿越涵洞)應留有(you)10%~30%的(de)裕量,裝(zhuang)置主管(guan)(guan)廊(lang)宜留有(you)10%~20%的(de)裕量],并考慮(lv)管(guan)(guan)廊(lang)下設備檢(jian)修的(de)最小通道,確定管(guan)(guan)廊(lang)的(de)寬度。
④. 根(gen)據已(yi)有管廊(lang)的位置,新裝置管廊(lang)東、西(xi)向布置較為合理。管廊(lang)的柱子邊緣距道路不應小于1m。
⑤. 加熱(re)爐(lu)應放在(zai)常(chang)年最小(xiao)頻率風(feng)向的下風(feng)側,位(wei)于管廊南(nan)側(圖(tu)5-100)。爐(lu)子所占面積較(jiao)大,總寬(kuan)度為(wei)10m,其四周要設(she)置平臺,從(cong)裝置南(nan)邊(bian)界線往(wang)北20m設(she)管廊第一排柱子。

五、主(zhu)要設(she)備的布置
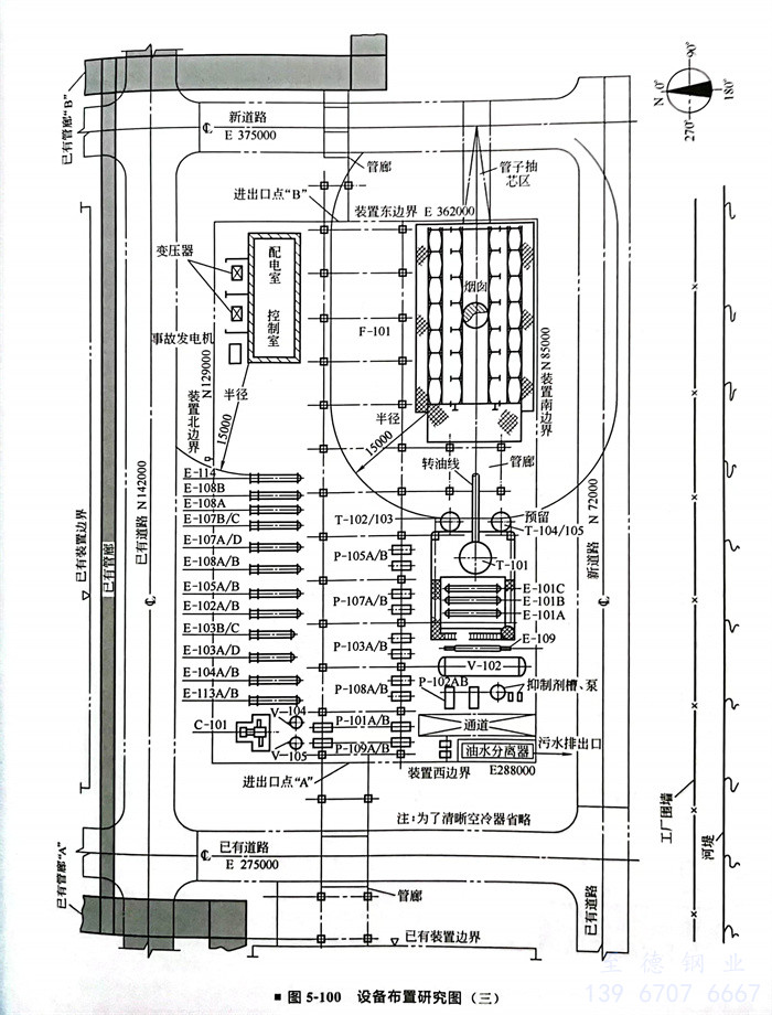
1. 原油(you)加熱爐F-101的布置(圖(tu)5-101)

原(yuan)油加熱爐是長23m寬(kuan)10m的箱式(shi)爐,煙囪和(he)加熱爐組裝在一起。
加熱爐布(bu)置的要點如(ru)下:
①. 位于(yu)常年(nian)最小(xiao)頻率(lv)風(feng)向的下風(feng)側。
②. 加熱爐周圍保持15m的安全距離(li)。
③. 對流(liu)段管(guan)束抽芯所需要的空間(jian),在布置圖上要表(biao)示出,抽芯區域內不得有任何障礙(ai)物。
④. 為便于施工安裝,加熱爐(lu)應位于主要道路旁。
2. 控制室(shi)的布(bu)置(圖5-101)
確定(ding)控(kong)制(zhi)室(shi)的(de)位(wei)置時應(ying)(ying)考慮安全性,控(kong)制(zhi)室(shi)應(ying)(ying)離逸出可(ke)燃性氣體的(de)設備有15m的(de)距離。在有的(de)設計單位(wei),控(kong)制(zhi)室(shi)的(de)布置是由總(zong)圖專(zhuan)業完成的(de)。
3. 分(fen)餾塔T-101及有關設(she)備(bei)的(de)布置(圖5-101)
從加熱爐F-101到塔T-101的轉(zhuan)油線是(shi)一根關鍵管(guan)線,盡可能短些,因為管(guan)口是(shi)在(zai)爐子的西面,所以T-101在(zai)F-101的西面是(shi)合理的。
汽提塔T-102 和T-103 緊靠T-101。
如圖(tu)5-101所(suo)示,應按工藝流程和重力流要求布(bu)置(zhi)設備。從T-101來的塔頂(ding)管線經(jing)換熱器E-101至空(kong)冷器E-115,再經(jing)冷凝器E-110到(dao)儲(chu)槽V-101。
在正式畫(hua)平面(mian)布(bu)置圖以前(qian),先畫(hua)一張草圖。研(yan)究所(suo)有設(she)備安裝和檢(jian)修(xiu)是否可行。
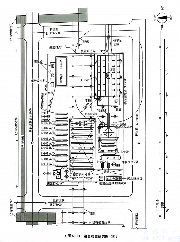
4. 空冷器的布置(zhi)
大型空冷器E-115放在(zai)中(zhong)間(jian),便于從(cong)E-101來的管線敷設。
管線的(de)走向要(yao)和(he)流程一(yi)致。因(yin)為(wei)煤油和(he)輕(qing)組分油管線在(zai)裝置東邊(bian)界進(jin)出(chu)口點(dian)“B”連接(jie),故空冷器(qi)E-116和(he)E-117放在(zai)E-115的(de)東邊(bian)。
便于(yu)擴建時(shi)預(yu)留空(kong)冷(leng)器的安裝,預(yu)留的空(kong)冷(leng)器放在E-115的西邊(bian)。
5. 脫鹽(yan)水V-102及(ji)有關設備的布(bu)置(zhi)(圖5-101)
V-102是(shi)一個大型設(she)備,直徑(jing)3m,切線至切線長度為11m,加上球形封頭總長為14m。因為管廊至南(nan)邊(bian)界線的(de)距離是(shi)20m,可放置(zhi)脫(tuo)鹽器,故(gu)把V-102放在(zai)管廊的(de)南(nan)邊(bian)。
換(huan)熱(re)器E-102、E-103和E-104布置(zhi)在管廊的北(bei)面,因為原油進(jin)(jin)料管線從(cong)西面進(jin)(jin)入后,經換(huan)熱(re)器后進(jin)(jin)入脫鹽器。
加熱爐加料泵P-102旁(pang)布置抑(yi)制(zhi)(zhi)劑(ji)配制(zhi)(zhi)設(she)備(bei)。脫鹽器(qi)人口要加入抑(yi)制(zhi)(zhi)劑(ji),配制(zhi)(zhi)設(she)備(bei)放在這里(li),袋子拆卸方便(bian)。
6. 原(yuan)油預熱(re)器(qi)群的(de)布(bu)置(圖(tu)5-100和圖(tu)5-101)
換(huan)熱(re)(re)器(qi)E-105、E-106、E-107放在管廊(lang)的北面(mian)換(huan)熱(re)(re)器(qi)區(qu)域內(nei),和E-102、E-103、E-104排成一行。
這些換熱(re)器的(de)布置,不能妨(fang)礙換熱(re)器周(zhou)圍的(de)檢修通(tong)道,并要提(ti)供足夠的(de)管(guan)(guan)束抽芯空間。在管(guan)(guan)廊和(he)換熱(re)器之(zhi)間要有足夠的(de)距(ju)離,以便于接近(jin)換熱(re)器封頭。
完(wan)成換熱器E-108、E-113和E-114的(de)(de)定(ding)位:蒸汽發(fa)生器E-108布置在E-107的(de)(de)東邊,它靠近(jin)泵(beng)P-107及(ji)相對地接近(jin)F-101。
要符合(he)流程(cheng)圖的流向(xiang),水冷卻(que)器E-113緊(jin)靠E-104布置,使得E-101來的配管距離最(zui)短。冷卻(que)器E-114位(wei)于E-108的東邊(bian),在控制(zhi)室最(zui)小(xiao)安(an)全距離之外。
7. 壓縮機C-101及附屬設備的布置(圖5-100和(he)圖5-101)
壓縮機(ji)為往(wang)復式(shi)、兩段、電機(ji)驅動的雙缸對(dui)置式(shi)壓縮機(ji),帶一、二段冷卻器,一臺(tai),占地面積約(yue)5㎡。
甲方沒有(you)提出建造壓(ya)縮機廠房(fang)的要求時,則壓(ya)縮機露天安裝。它和(he)吸入罐V-104及V-105一起布(bu)置(zhi)在裝置(zhi)的最西端。
因(yin)為(wei)氣(qi)體和(he)二段冷凝液管線在“A”處(chu)進出裝置,壓縮機C-101布(bu)置在裝置邊界線附近是很理想的。
8. 泵的布置
圖(tu)5-100示出了管廊下泵的(de)布置。
當管(guan)廊(lang)(lang)柱間距為6m時,可安裝(zhuang)兩臺中型泵,并有供(gong)電纜的(de)足夠空間。泵的(de)排(pai)出口位于管(guan)廊(lang)(lang)柱中心(xin)線外側600mm(見(jian)圖5-102)。
原油加(jia)料(liao)泵P-101位于裝(zhuang)置西(xi)邊界管線進出(chu)口附(fu)近。
泵P-103、P-105和P-108靠近有(you)關設備(bei)T-101布(bu)置,分餾塔T-101及泵的吸入管線要有(you)一定的柔性(xing)。
泵P-104、P-106布置在框架下(xia)。
9. 油水分離器的布(bu)置(圖(tu)5-100)
油水(shui)(shui)分離器(qi)是把烴(jing)類和雨水(shui)(shui)、消防水(shui)(shui)分離,然后用泵將烴(jing)送(song)至(zhi)廢油罐(guan)(在裝置(zhi)以(yi)外)處理,分離器(qi)排(pai)出的污水(shui)(shui)送(song)至(zhi)全(quan)廠污水(shui)(shui)處理系統。
場(chang)地西南角的(de)尺(chi)寸(cun)和(he)位置布置油水分(fen)離(li)器(qi)合(he)適,理(li)由如下:裝置污(wu)水管要接至工(gong)廠已有污(wu)水總(zong)管,正好在油水分(fen)離(li)器(qi)的(de)南面;廢油管線理(li)想的(de)引出位置在“A”點,離(li)加熱爐F-101的(de)距離(li)最遠(yuan)。
六、管線(xian)走向研(yan)究圖(tu)
平(ping)面布置(zhi)圖供給各有關專業前,根據(ju)管(guan)道-儀表流程圖畫(hua)管(guan)線走(zou)向(xiang)圖以(yi)校驗(yan)平(ping)面布置(zhi)圖。
①. 管線(xian)走向圖的(de)用途有:決定管廊的(de)寬度和(he)層(ceng)數;校核設(she)備布置和(he)物料流向。
②. 管線(xian)走(zou)(zou)向(xiang)(xiang)圖(tu)由裝(zhuang)置設備布置設計者負(fu)責繪制。管線(xian)走(zou)(zou)向(xiang)(xiang)圖(tu)由一根根管線(xian)組成,管線(xian)走(zou)(zou)向(xiang)(xiang)盡可能使(shi)距(ju)離(li)縮短,減少不(bu)必要的繞行(xing)。通常(chang),管廊的走(zou)(zou)向(xiang)(xiang)改變(bian)的,要改變(bian)標高,圖(tu)上不(bu)必表(biao)示管子的上升和下降(jiang)。
管廊(lang)上(shang)的調節閥組、孔板和主要管線中的特殊配(pei)件應表示出(chu)位置,以便校核(he)所(suo)需要的空間。
當(dang)管線走向圖(tu)完(wan)成(cheng)后,應校核(he)管廊(lang)的(de)寬(kuan)度,為今后的(de)擴(kuo)建,每一層管廊(lang)預留一定(ding)的(de)余(yu)量。如(ru)果管廊(lang)的(de)寬(kuan)度超過10m,通(tong)常改為雙層管廊(lang)。
③. 管線走(zou)向(xiang)圖(tu)應做到如下各點。
a. 管廊的寬(kuan)度一般不超過(guo)10m。
b. 只有安裝空冷器(qi)組(zu)的一段管廊需要(yao)雙層的。
c. 為加熱爐F-101轉油線的支承,需設一單層管(guan)廊。
d. 在管廊上敷設電(dian)(dian)氣(qi)和(he)儀表電(dian)(dian)纜,兩電(dian)(dian)纜槽(cao)之間要(yao)有1m的凈距。
e. 確定(ding)管廊橫梁的標高。
f. 在管(guan)線(xian)進(jin)出口“A”處(chu)若為(wei)單層管(guan)廊(lang)時,需增加管(guan)廊(lang)的寬(kuan)度(du)(du),在管(guan)線(xian)進(jin)出口“B”處(chu)為(wei)單層管(guan)廊(lang)時,也(ye)需增加管(guan)廊(lang)的寬(kuan)度(du)(du)(去火炬干管(guan)除外(wai))。
g. 確(que)定從(cong)控制室來的(de)電纜(lan)架的(de)位置。
h. 確定冷卻水、循環水在裝置進出口的位置。
i. 完成(cheng)裝(zhuang)置進出口管線表,包括管線尺寸和(he)流動介質。
七、修改并完成建議的平(ping)面布置(zhi)圖
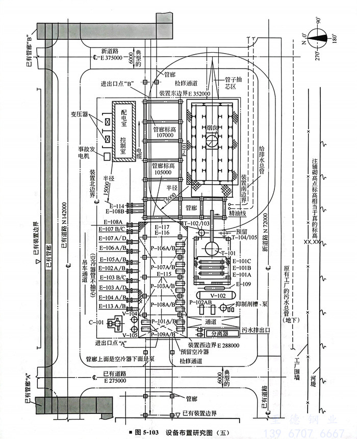
將建議的(de)平面布置圖修改了,把管(guan)廊北面的(de)換(huan)熱(re)器(qi)群南移,使換(huan)熱(re)器(qi)殼體的(de)一部分(fen)和封頭位于管(guan)廊下,因為(wei)附近(jin)沒(mei)有(you)泵。圖5-103中(zhong)還表示了空(kong)冷器(qi)管(guan)束抽(chou)芯所需的(de)吊車通道。

為(wei)了保證裝置(zhi)檢(jian)修時吊車能吊裝各種(zhong)負荷(he),要校核吊車的荷(he)載能否達到要求。
圖(tu)5-102是(shi)裝置(zhi)的剖視圖(tu),這張圖(tu)需要(yao)與甲方及施工(gong)單位結合(he),它進一步驗(yan)證了通道(dao)等(deng)檢(jian)修條件是(shi)否滿足要(yao)求。

圖5-104為用坐(zuo)標(biao)標(biao)注平(ping)面布置圖的實例:建、構筑(zhu)物的尺寸(cun)要以坐(zuo)標(biao)標(biao)注,設備(bei)的安(an)裝尺寸(cun)從有坐(zuo)標(biao)的柱號(hao)標(biao)注相對尺寸(cun)。


