某裝置內主管(guan)廊
某裝置(zhi)(zhi)內(nei)主(zhu)(zhu)管廊側(ce)面圖(tu),管廊主(zhu)(zhu)體總(zong)長203m,寬13m,頂層(ceng)標高(gao)22m,其中管廊上(shang)設(she)備(bei)框架最高(gao)處距(ju)地標高(gao)38m。主(zhu)(zhu)管廊大約布置(zhi)(zhi)了兩千多條管線。圖(tu)5-8加粗部分(fen)為主(zhu)(zhu)管廊在整個(ge)裝置(zhi)(zhi)區內(nei)的位(wei)置(zhi)(zhi),圖(tu)5-9是一小段主(zhu)(zhu)管廊結構側(ce)面結構圖(tu)。
一(yi)些(xie)大、中(zhong)型工程項目中(zhong),通常先(xian)根據工藝系統(tong)圖和裝置(zhi)規劃(hua)圖,對需要占用管(guan)(guan)廊(lang)(lang)的管(guan)(guan)線、儀表電氣槽架和設(she)備進行初步的布置(zhi)研究,綜合考慮(lv)(lv)管(guan)(guan)廊(lang)(lang)的層數、層高(gao)和預留裕量等(deng)因素,最終(zhong)確定最小管(guan)(guan)廊(lang)(lang)寬度(du)。管(guan)(guan)廊(lang)(lang)橫斷(duan)面(mian)是(shi)兩(liang)個立(li)柱的,寬度(du)一(yi)般(ban)不超(chao)過(guo)10m,如果超(chao)過(guo)10m,管(guan)(guan)廊(lang)(lang)橫斷(duan)面(mian)宜(yi)采用三個立(li)柱,如圖5-8中(zhong)涂(tu)黑加粗部分的立(li)管(guan)(guan)廊(lang)(lang)。如果管(guan)(guan)廊(lang)(lang)上(shang)布置(zhi)空冷(leng)(leng)器,管(guan)(guan)廊(lang)(lang)寬度(du)需考慮(lv)(lv)空冷(leng)(leng)器管(guan)(guan)束(shu)長度(du),具體要求見本書空冷(leng)(leng)器布置(zhi)設(she)計(ji)章節詳(xiang)述。

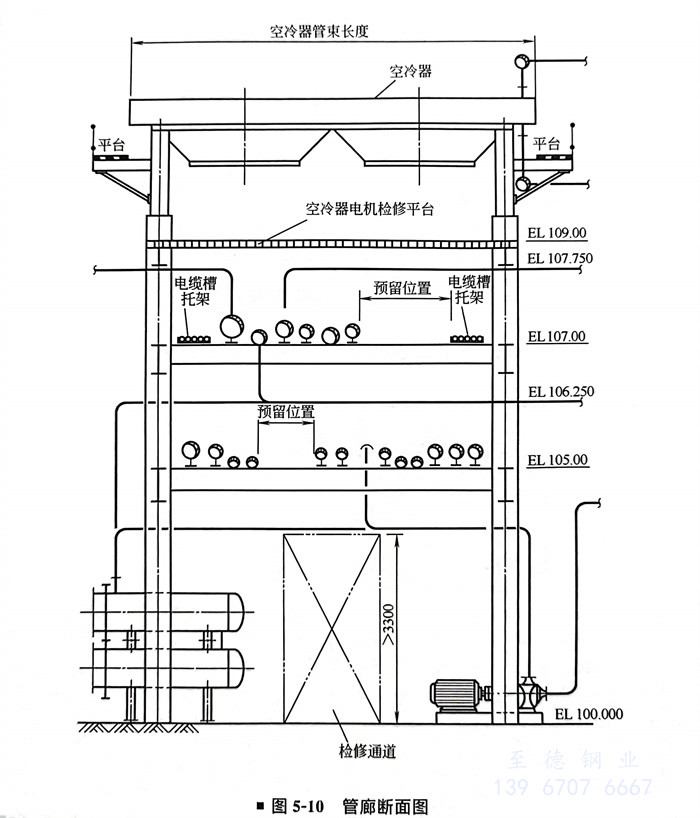
典型管廊(lang)斷面圖(tu)(圖(tu)5-10)

大型綜合管廊(lang)典型布置設(she)計
石(shi)化裝(zhuang)置(zhi)大型(xing)綜合管廊(lang)不同于裝(zhuang)置(zhi)小管廊(lang),設計技術難度及工作(zuo)量常(chang)常(chang)是整(zheng)個(ge)工程裝(zhuang)置(zhi)最大的之(zhi)一。
有的裝置(zhi)內(nei)大型(xing)(xing)綜合(he)管(guan)(guan)廊(lang)橫斷面有一百多根管(guan)(guan)線,平均口徑10"左右(you),管(guan)(guan)廊(lang)下面布置(zhi)了泵(beng)、臥罐、閥(fa)組、減溫減壓器、換熱器、分析小屋等設(she)(she)備(bei)(bei)實施(shi),管(guan)(guan)廊(lang)側面布置(zhi)了安全(quan)(quan)閥(fa)、消音器等設(she)(she)備(bei)(bei),管(guan)(guan)廊(lang)頂部布置(zhi)了空(kong)冷器、立(li)式塔、安全(quan)(quan)閥(fa)、控制閥(fa)等設(she)(she)備(bei)(bei)。這(zhe)種裝置(zhi)內(nei)大型(xing)(xing)綜合(he)管(guan)(guan)廊(lang)有的設(she)(she)計到(dao)約15m寬、40m高。
有的煉(lian)化(hua)一(yi)體化(hua)裝置(zhi)外大型綜(zong)合(he)管廊(lang)橫(heng)斷面有200~300根管線,有的管廊(lang)寬度(du)達50m左(zuo)右、高度(du)達40m左(zuo)右。
大(da)型綜合管(guan)(guan)廊(lang)的(de)跨距有(you)(you)的(de)用(yong)(yong)(yong)9m,有(you)(you)的(de)用(yong)(yong)(yong)12m或18m。有(you)(you)的(de)全用(yong)(yong)(yong)混凝土的(de),有(you)(you)的(de)全用(yong)(yong)(yong)鋼(gang)結(jie)(jie)構的(de),有(you)(you)的(de)第1層用(yong)(yong)(yong)混凝土,以上層用(yong)(yong)(yong)的(de)是(shi)鋼(gang)結(jie)(jie)構。不(bu)同(tong)的(de)跨距、不(bu)同(tong)的(de)結(jie)(jie)構形式對管(guan)(guan)道設計(ji)程序和整個(ge)工程項目的(de)造價、進(jin)度(du)影(ying)響很大(da),具(ju)體見《工業管(guan)(guan)道配管(guan)(guan)設計(ji)與工程應用(yong)(yong)(yong)》一書的(de)詳述。
管廊頂部設備布置(zhi)設計
管廊(lang)(lang)頂(ding)部(bu)常布置空(kong)冷器(qi)(qi)、換熱器(qi)(qi)、立式設備、安全閥等設備。圖5-11是管廊(lang)(lang)頂(ding)部(bu)臥式設備的布置示意圖。有的工程把約(yue)15m高的干燥塔布置在(zai)了管廊(lang)(lang)頂(ding)部(bu)。


