①. 一般不銹鋼容器管道受工藝過程和容器結構的約束因素較少,所以不銹(xiu)鋼管道的敷設重點在操作方便、經濟美觀。
②. 不銹鋼容器的(de)周圍宜分為配管(guan)區(qu)和操作區(qu),不銹鋼管(guan)道布置在配管(guan)區(qu),儀表、人孔和梯子布置在操作區(qu)。
③. 不銹(xiu)鋼管(guan)道宜沿著立式容器的(de)外壁布置,管(guan)道上(shang)的(de)閥門應與設備管(guan)口直接連(lian)接。
④. 臥式容器下部的管道(dao)如果考慮人員(yuan)通(tong)行(xing),管道(dao)距(ju)操作面的凈空高度(du)不應(ying)小于2.2m。
⑤. 不銹鋼容器(qi)底部管道沿(yan)地面敷設(she)時(shi),管道低(di)點(dian)排液(ye)口距地面的凈距不應(ying)小于150mm。
⑥. 不(bu)銹鋼(gang)容器管(guan)道配管(guan)設計(ji)應(ying)滿足(zu)工藝要(yao)求。例如(ru)(ru),入(ru)口管(guan)道避免(mian)(mian)出(chu)現袋(dai)形(xing);有(you)無坡度等要(yao)求。如(ru)(ru)圖(tu)5.27(a)、(b)所(suo)示,為使停工時管(guan)內(nei)不(bu)積液,應(ying)采用底平的(de)異徑(jing)管(guan)。如(ru)(ru)圖(tu)5.27(c)、(d)所(suo)示,回(hui)流油(you)罐進泵管(guan)線(xian)(xian)不(bu)得(de)出(chu)現下袋(dai)形(xing),防止氣阻和(he)汽蝕,防止泵抽(chou)空。如(ru)(ru)圖(tu)5.27所(suo)示,初餾和(he)常(chang)壓塔頂(ding)回(hui)流罐的(de)通往燃料氣的(de)管(guan)線(xian)(xian),其切斷閥(fa)應(ying)靠近設備管(guan)口,管(guan)線(xian)(xian)不(bu)得(de)出(chu)現袋(dai)形(xing),以(yi)免(mian)(mian)積液影響(xiang)罐內(nei)壓力,在管(guan)線(xian)(xian)的(de)高點設放(fang)空閥(fa)。

⑦. 優先考慮臥式容器的大口徑不(bu)銹鋼管道,然后考慮其他管道,考慮支承,美觀地敷設。
⑧. 不(bu)銹(xiu)鋼管道可在容器本體上設置支架。
⑨. 從立式容(rong)器上部管(guan)(guan)口下(xia)來(lai)的(de)管(guan)(guan)道(dao)和大口徑不銹鋼(gang)管(guan)(guan)道(dao)應優(you)先配置。
⑩. 不銹鋼容器安(an)全閥(fa)的(de)配管設(she)計
a. 按(an)照TSG R0004《固定(ding)(ding)式壓(ya)(ya)(ya)力(li)(li)容(rong)(rong)(rong)器(qi)(qi)安(an)(an)全(quan)(quan)(quan)(quan)技(ji)術監察規(gui)程》規(gui)定(ding)(ding):壓(ya)(ya)(ya)力(li)(li)容(rong)(rong)(rong)器(qi)(qi)安(an)(an)全(quan)(quan)(quan)(quan)閥(fa)(fa)(fa)(fa)應(ying)當豎(shu)直安(an)(an)裝(zhuang)在壓(ya)(ya)(ya)力(li)(li)容(rong)(rong)(rong)器(qi)(qi)液面以上(shang)氣相空間(jian)部分(fen),或(huo)者裝(zhuang)設(she)在與(yu)(yu)壓(ya)(ya)(ya)力(li)(li)容(rong)(rong)(rong)器(qi)(qi)氣相空間(jian)相連的(de)(de)(de)(de)(de)管(guan)(guan)道上(shang);壓(ya)(ya)(ya)力(li)(li)容(rong)(rong)(rong)器(qi)(qi)與(yu)(yu)安(an)(an)全(quan)(quan)(quan)(quan)閥(fa)(fa)(fa)(fa)之(zhi)間(jian)的(de)(de)(de)(de)(de)連接(jie)管(guan)(guan)和管(guan)(guan)件的(de)(de)(de)(de)(de)通孔(kong),其截面積(ji)(ji)不得(de)小于安(an)(an)全(quan)(quan)(quan)(quan)閥(fa)(fa)(fa)(fa)的(de)(de)(de)(de)(de)進(jin)口截面積(ji)(ji),其接(jie)管(guan)(guan)應(ying)當盡量短(duan)而直;壓(ya)(ya)(ya)力(li)(li)容(rong)(rong)(rong)器(qi)(qi)一個(ge)連接(jie)口上(shang)裝(zhuang)設(she)兩(liang)個(ge)或(huo)者兩(liang)個(ge)以上(shang)安(an)(an)全(quan)(quan)(quan)(quan)閥(fa)(fa)(fa)(fa)時(shi),則該連接(jie)口入口的(de)(de)(de)(de)(de)截面積(ji)(ji),應(ying)當至少等于這些安(an)(an)全(quan)(quan)(quan)(quan)閥(fa)(fa)(fa)(fa)的(de)(de)(de)(de)(de)進(jin)口截面積(ji)(ji)總和;安(an)(an)全(quan)(quan)(quan)(quan)閥(fa)(fa)(fa)(fa)與(yu)(yu)壓(ya)(ya)(ya)力(li)(li)容(rong)(rong)(rong)器(qi)(qi)之(zhi)間(jian)一般不宜(yi)裝(zhuang)設(she)截止閥(fa)(fa)(fa)(fa)門(men);為(wei)(wei)實(shi)現安(an)(an)全(quan)(quan)(quan)(quan)閥(fa)(fa)(fa)(fa)的(de)(de)(de)(de)(de)在線校驗,可在安(an)(an)全(quan)(quan)(quan)(quan)閥(fa)(fa)(fa)(fa)與(yu)(yu)壓(ya)(ya)(ya)力(li)(li)容(rong)(rong)(rong)器(qi)(qi)之(zhi)間(jian)裝(zhuang)設(she)爆(bao)破片裝(zhuang)置;對于盛裝(zhuang)毒性程度(du)(du)為(wei)(wei)極度(du)(du)、高度(du)(du)、中度(du)(du)危害介(jie)質(zhi),易燃介(jie)質(zhi),腐(fu)蝕(shi)、黏性介(jie)質(zhi)或(huo)者貴(gui)重介(jie)質(zhi)的(de)(de)(de)(de)(de)壓(ya)(ya)(ya)力(li)(li)容(rong)(rong)(rong)器(qi)(qi),為(wei)(wei)便于安(an)(an)全(quan)(quan)(quan)(quan)閥(fa)(fa)(fa)(fa)的(de)(de)(de)(de)(de)清(qing)洗(xi)與(yu)(yu)更換,經過(guo)使(shi)用單位主管(guan)(guan)壓(ya)(ya)(ya)力(li)(li)容(rong)(rong)(rong)器(qi)(qi)安(an)(an)全(quan)(quan)(quan)(quan)技(ji)術負(fu)責人批準,并(bing)且制定(ding)(ding)可靠的(de)(de)(de)(de)(de)防范措施,方可在安(an)(an)全(quan)(quan)(quan)(quan)閥(fa)(fa)(fa)(fa)(爆(bao)破片裝(zhuang)置)與(yu)(yu)壓(ya)(ya)(ya)力(li)(li)容(rong)(rong)(rong)器(qi)(qi)之(zhi)間(jian)裝(zhuang)設(she)截止閥(fa)(fa)(fa)(fa)門(men),壓(ya)(ya)(ya)力(li)(li)容(rong)(rong)(rong)器(qi)(qi)正常運行(xing)期(qi)間(jian)截止閥(fa)(fa)(fa)(fa)門(men)必須保(bao)證(zheng)全(quan)(quan)(quan)(quan)開(加鉛封或(huo)者鎖定(ding)(ding)),截止閥(fa)(fa)(fa)(fa)門(men)的(de)(de)(de)(de)(de)結構(gou)和通徑(jing)不得(de)妨礙(ai)安(an)(an)全(quan)(quan)(quan)(quan)閥(fa)(fa)(fa)(fa)的(de)(de)(de)(de)(de)安(an)(an)全(quan)(quan)(quan)(quan)閥(fa)(fa)(fa)(fa)的(de)(de)(de)(de)(de)安(an)(an)全(quan)(quan)(quan)(quan)泄放。
b. 不銹(xiu)鋼容(rong)器安(an)全閥設(she)計安(an)裝位置(zhi)靠近(jin)容(rong)器的主(zhu)管位置(zhi),遠(yuan)距離(li)設(she)置(zhi)時,要進行壓降核算。
c. 安全閥跳動時,產生推(tui)力,應設(she)計抗推(tui)力的支架。
d. 排(pai)向大氣的噴出(chu)管口肘部設(she)置(zhi)淚孔,以便(bian)于(yu)液體和雨水排(pai)出(chu)。排(pai)放不要(yao)朝向通道口。
e. 多個安(an)(an)全閥(fa)相鄰安(an)(an)裝時(shi),排出管(guan)采用集合管(guan)形式。
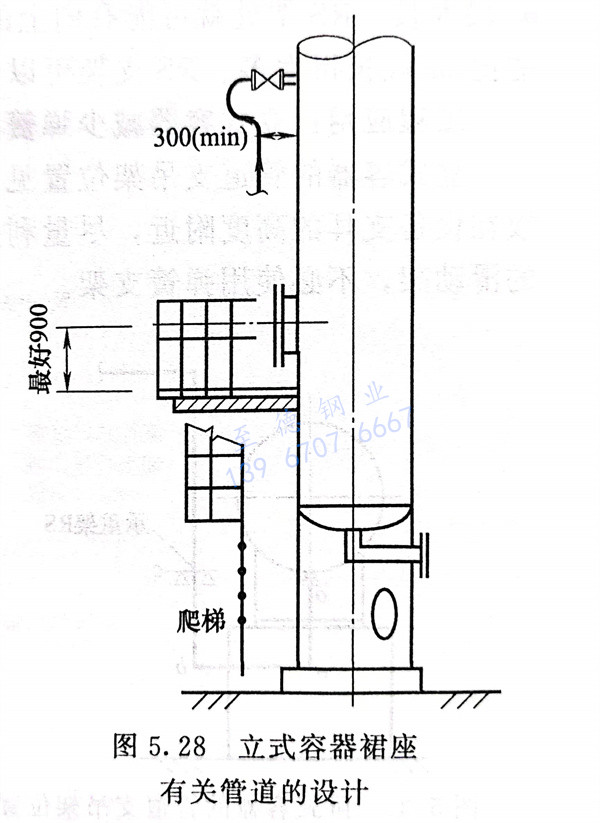
?. 立式(shi)容(rong)器若采用(yong)裙座(zuo)式(shi)支撐,容(rong)器底(di)部的(de)所有管口應采用(yong)管線把接口法(fa)蘭(lan)(lan)引到裙座(zuo)外(wai)側,裙座(zuo)內不得(de)安裝(zhuang)法(fa)蘭(lan)(lan)和閥門等(deng),見圖5.28。

?. 受熱作(zuo)用(yong)的(de)管(guan)道(dao)應考(kao)慮其柔(rou)性要求(qiu)。例如,與離心壓縮機相接的(de)管(guan)道(dao);儀表(biao)用(yong)的(de)較長連接管(guan)。
?. 產生(sheng)振動的管(guan)道(dao)應對支架進行加固。

