一、管廊(lang)布置(zhi)的一般(ban)要(yao)求(qiu)
①. 管(guan)廊應處于易(yi)與各類主(zhu)要設備(bei)聯系的(de)位置(zhi)上(shang)。要考慮(lv)能使多(duo)數管(guan)線布置(zhi)合理,少(shao)繞行,以減少(shao)管(guan)線長度(du)。典型的(de)位置(zhi)是在兩排設備(bei)的(de)中(zhong)間或一排設備(bei)的(de)旁(pang)側。
②. 布置管廊要綜(zong)合考(kao)慮道路、消防(fang)的(de)需要,以及地(di)下管道與電纜布置和臨近(jin)建、構筑物等(deng)情況(kuang),并避開大、中型設備的(de)檢(jian)修場(chang)地(di)。
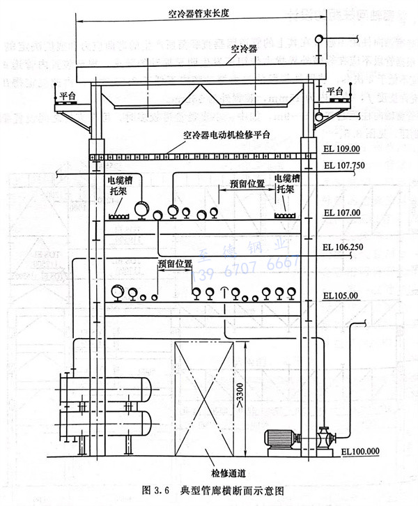
③. 管廊上部可(ke)以(yi)布置空(kong)冷(leng)器、小型設備(bei)、操作閥組(zu)平(ping)臺、儀表和(he)電(dian)氣電(dian)纜(lan)槽等(deng),下部可(ke)以(yi)布置泵等(deng)設備(bei)。
④. 管廊上(shang)設(she)(she)有的閥門需要操作或檢(jian)修(xiu)時,應設(she)(she)置(zhi)人行走道或局部操作平臺。
二、管廊軸向(xiang)柱距的設計
①. 管廊(lang)軸(zhou)向柱(zhu)距由敷設在其上的管道因(yin)垂直載荷所(suo)產生的彎曲應(ying)力和撓度決(jue)定的。
②. 根據管段(duan)不應在(zai)輕微外界擾力作用下發生明(ming)顯振(zhen)動的(de)要求,規(gui)定裝置(zhi)內管道(dao)的(de)固有振(zhen)動頻率宜不低于4次/s,裝置(zhi)外管段(duan)的(de)自(zi)由振(zhen)動頻率不低于2.55次/s,由此規(gui)定得出(chu)兩支架(jia)間(jian)管道(dao)允(yun)許撓度f,裝置(zhi)內為(wei)15mm,裝置(zhi)外為(wei)38mm。
③. 管廊軸(zhou)向(xiang)柱距通常為6~9m,如中、小(xiao)直徑管道(dao)較(jiao)多時,可(ke)在支柱之間設置副梁以滿足(zu)管道(dao)跨(kua)距,見(jian)圖3.5。
④. 管(guan)廊支柱(zhu)的間距,宜與設備框架支柱(zhu)的間距取得(de)一(yi)致,以便管(guan)道通過。

三、管廊橫斷面寬度的設計
①. 管(guan)(guan)廊(lang)的(de)(de)(de)寬度主要(yao)由管(guan)(guan)道的(de)(de)(de)數量和(he)(he)(he)管(guan)(guan)徑的(de)(de)(de)大小確定(ding)。并考慮(lv)一定(ding)的(de)(de)(de)預留(liu)寬度,新(xin)設計的(de)(de)(de)管(guan)(guan)廊(lang)一般留(liu)有擴建預留(liu)量[全廠性(xing)管(guan)(guan)廊(lang)或管(guan)(guan)墩上(shang)(包括穿(chuan)越涵洞(dong))應留(liu)有10%~30%的(de)(de)(de)裕量,裝置主管(guan)(guan)廊(lang)宜留(liu)有10%~20%的(de)(de)(de)裕量]。同時要(yao)考慮(lv)管(guan)(guan)廊(lang)下設備(bei)和(he)(he)(he)通道以及管(guan)(guan)廊(lang)上(shang)空(kong)冷設備(bei)等(deng)結構的(de)(de)(de)影響。如果要(yao)求敷設儀表(biao)引線(xian)槽架和(he)(he)(he)電力(li)電纜時,還應考慮(lv)它們所需的(de)(de)(de)寬度。
②. 管廊(lang)上布置空(kong)(kong)冷(leng)器時,管廊(lang)橫斷面支柱跨距最好與(yu)空(kong)(kong)冷(leng)器的(de)間距尺寸(cun)相同,以使(shi)管廊(lang)立柱與(yu)空(kong)(kong)冷(leng)器支柱中心(xin)線對齊。
③. 管(guan)廊下(xia)布(bu)(bu)置泵時(shi),應考慮泵的布(bu)(bu)置及其(qi)所需操作和(he)檢修通(tong)道(dao)(dao)的寬(kuan)度(du),如果泵的驅動(dong)機用電纜(lan)地下(xia)敷設時(shi),還應考慮電纜(lan)溝所需寬(kuan)度(du)。此外,還要考慮泵用冷卻水管(guan)道(dao)(dao)和(he)排水管(guan)道(dao)(dao)的干管(guan)所需寬(kuan)度(du)。不過,電纜(lan)溝和(he)排水管(guan)道(dao)(dao)可以布(bu)(bu)置在通(tong)道(dao)(dao)的下(xia)面,見圖3.6。
④. 由(you)于整個(ge)管(guan)廊的管(guan)道布置密度(du)并(bing)不相同,通常在首尾(wei)段(duan)的管(guan)道數(shu)量較(jiao)少。因此,在必要時可以(yi)減(jian)少首尾(wei)段(duan)的寬度(du)或層數(shu)。

四、管廊層(ceng)高的設計
①. 接近地面第一層管廊的最小凈高的設計
a. 在道路上空橫穿時,按中國(guo)國(guo)內消防車、運輸車等一(yi)般高度標(biao)準,SH規范的管廊(lang)高度布置標(biao)準要求如下。
·裝置內管廊距地面凈(jing)空高度(du)(du)(du):行車道(dao)(dao)(dao)、消防道(dao)(dao)(dao)和(he)檢(jian)修(xiu)通道(dao)(dao)(dao)最(zui)小(xiao)凈(jing)高4.5m,泵區檢(jian)修(xiu)通道(dao)(dao)(dao)最(zui)小(xiao)凈(jing)高3m,操(cao)作通道(dao)(dao)(dao)最(zui)小(xiao)凈(jing)高2.2m(此高度(du)(du)(du)是飲(yin)用了歐(ou)美國家(jia)人的高度(du)(du)(du)加安全帽的高度(du)(du)(du)算出(chu)來的,日本操(cao)作通道(dao)(dao)(dao)通常為2.0m)。
·裝(zhuang)置外跨越(yue)廠(chang)(chang)區的全(quan)廠(chang)(chang)管廊(lang)據地面凈空高度:跨越(yue)鐵路(lu)最小凈高5.5m,跨越(yue)廠(chang)(chang)內道路(lu)最小凈高5m。
以(yi)上僅是一般(ban)情(qing)況(kuang)下管(guan)(guan)廊(lang)的(de)(de)(de)高度(du)要求,管(guan)(guan)廊(lang)的(de)(de)(de)設計高度(du)還要結合項目實際情(qing)況(kuang)考慮全廠(chang)的(de)(de)(de)大型設備的(de)(de)(de)運輸需要的(de)(de)(de)高度(du),再(zai)最終確定(ding)管(guan)(guan)廊(lang)的(de)(de)(de)布(bu)置(zhi)高度(du)。例如,某(mou)新建工(gong)廠(chang),根據大件運輸的(de)(de)(de)要求,跨越全廠(chang)主干道的(de)(de)(de)管(guan)(guan)廊(lang),距離地面(mian)的(de)(de)(de)最小凈空高度(du)為10m。
國外某工程項目,需(xu)根據所在國家的(de)規范要求設計管(guan)廊(lang)高(gao)度。例如,蘇聯(lian)(俄(e)羅(luo)斯)的(de)消防車一(yi)般較高(gao),俄(e)羅(luo)斯全廠管(guan)廊(lang)距離路面(mian)最小凈高(gao)為5.5m,比中國高(gao)0.5m。
b. 當管廊有桁架時要按桁架底高計算。
c. 為有效地(di)利用管(guan)廊(lang)空(kong)(kong)間,多在(zai)管(guan)廊(lang)下布置泵(beng)。考慮到泵(beng)的操作和維護,宜有4.0m凈空(kong)(kong)高度(du)。
②. 管廊上管道與分區設備相接時(shi),一般應(ying)比管廊的底層管道標高(gao)低(di)或高(gao)600~1000mm。管廊下布置管殼式換(huan)熱設備時(shi),根據設備實際(ji)高(gao)度需(xu)要增加管廊下的凈空。
③. 管(guan)(guan)廊外設備(bei)的(de)管(guan)(guan)道進入管(guan)(guan)廊所必需的(de)高度。若(ruo)為大(da)型裝置,其設備(bei)和管(guan)(guan)徑較(jiao)大(da),為防止(zhi)管(guan)(guan)道出(chu)現不(bu)必要(yao)的(de)袋形,管(guan)(guan)廊最(zui)下一層橫梁底(di)標高應低于設備(bei)管(guan)(guan)口500~750mm。
④. 若管(guan)廊附(fu)近有換(huan)熱(re)框(kuang)架(jia)(jia),換(huan)熱(re)設備的(de)(de)下部管(guan)道要(yao)(yao)從(cong)它(ta)的(de)(de)框(kuang)架(jia)(jia)平(ping)臺接往管(guan)廊,此(ci)時至少要(yao)(yao)保證管(guan)廊的(de)(de)下層橫梁低于換(huan)熱(re)框(kuang)架(jia)(jia)第一(yi)層平(ping)臺。
⑤. 當管(guan)(guan)廊(lang)改(gai)變方向或兩管(guan)(guan)廊(lang)成直角(jiao)相(xiang)交時,管(guan)(guan)廊(lang)宜錯(cuo)層布置(zhi),錯(cuo)層的(de)(de)高(gao)差(cha)宜為750~1000mm。當高(gao)差(cha)為750mm時,DN250以(yi)下(xia)的(de)(de)管(guan)(guan)子用兩個直角(jiao)彎頭和短管(guan)(guan)相(xiang)接;大于(yu)DN250的(de)(de)管(guan)(guan)子用一個45°彎頭、一個90°彎頭相(xiang)接。對于(yu)大型裝置(zhi)也可采(cai)用1000mm以(yi)上的(de)(de)高(gao)差(cha)。
⑥. 在確(que)定管(guan)廊(lang)高度(du)時(shi),要(yao)考慮到管(guan)廊(lang)橫梁和縱梁的結構斷面(mian)和形式,務必使梁底(di)或桁架底(di)的高度(du)滿足(zu)上述確(que)定管(guan)廊(lang)高度(du)的要(yao)求。對于雙層(ceng)管(guan)廊(lang),上下層(ceng)間距一般為(wei)(wei)1.5~2.0m,對于大型裝置上下層(ceng)間距可為(wei)(wei)2.5~3.0m,主要(yao)取決于管(guan)廊(lang)上最大口徑的管(guan)道。
⑦. 裝置之(zhi)間的管(guan)廊(lang)高(gao)(gao)度(du)取決于管(guan)廊(lang)地區的具體情況,如沿工(gong)廠(chang)(chang)邊緣或罐(guan)區,不(bu)會影(ying)響廠(chang)(chang)區交通和擴(kuo)建的地段,從(cong)經濟性和檢修(xiu)方便考慮,可用管(guan)墩(dun)敷(fu)設,離地面高(gao)(gao)300~500mm,即可滿足(zu)要求。
五(wu)、管墩的設計
圖3.7 常壓(ya)罐區的管墩設計
①. 管墩的間距按管徑最小的管道(dao)允許跨距進行(xing)設置。
②. 管(guan)墩頂距地面一般不宜小于0.4m,見圖3.7。

六、混(hun)凝(ning)土管(guan)廊(管(guan)墩(dun))梁頂預(yu)埋件
混凝土(tu)管廊(管墩)的梁(liang)頂應(ying)設通長預(yu)埋件,預(yu)埋件的形(xing)式應(ying)符合國家標準(zhun)SH/T 3055的要求。一般橫(heng)梁(liang)上(shang)應(ying)埋放一根圓鋼或鋼板,以減(jian)少管道與橫(heng)梁(liang)間的摩擦力(li)。
例如,某項(xiang)目在混凝(ning)土(tu)管廊(管墩(dun))梁(liang)頂上設置預(yu)埋件時,混凝(ning)土(tu)管廊(管墩(dun))梁(liang)頂一(yi)般按圖3.8(a)、(b)所(suo)示設通(tong)長預(yu)埋件,當管廊需要設導(dao)向架時,預(yu)埋件采(cai)用(yong)圖3.8(b)所(suo)示的形(xing)(xing)式(shi);當管廊需要設固定(ding)架時,預(yu)埋件采(cai)用(yong)圖3.8(c)所(suo)示的形(xing)(xing)式(shi)。

七、管廊(lang)上(shang)儀(yi)表電(dian)氣(qi)電(dian)纜槽架及巡(xun)檢梯子平臺的(de)布置(zhi)
①. 如(ru)果(guo)是中小型工程項目(mu),儀(yi)表(biao)電氣電纜槽架寬度較小,布置在(zai)管(guan)廊內(nei)或者掛在(zai)管(guan)廊外側面均可,并(bing)保持管(guan)道與槽架之間的間距。
②. 大中型項目,儀(yi)表電氣電纜槽(cao)(cao)架(jia)(jia)較寬,可(ke)能需要(yao)占(zhan)一層(ceng)(ceng)管(guan)(guan)廊的(de)(de)空間。電纜槽(cao)(cao)架(jia)(jia)和儀(yi)表槽(cao)(cao)架(jia)(jia)宜(yi)布置在(zai)(zai)上(shang)層(ceng)(ceng),電纜槽(cao)(cao)架(jia)(jia)層(ceng)(ceng)通(tong)常(chang)布置在(zai)(zai)火炬管(guan)(guan)道(dao)層(ceng)(ceng)與公用(yong)工程管(guan)(guan)道(dao)層(ceng)(ceng)之間。槽(cao)(cao)架(jia)(jia)的(de)(de)附(fu)近(jin)或正下方不(bu)應布置有熱影響的(de)(de)管(guan)(guan)道(dao)。
③. 對(dui)于(yu)全廠性管廊(lang),有的項目在電纜(lan)槽(cao)架層設置有全廠性巡檢通(tong)道(dao),并每隔一(yi)定距(ju)離(li)設置一(yi)直爬梯(ti)到地面。
工程應用:管廊柱(zhu)子基(ji)礎與地下(xia)管道、埋(mai)地電纜碰撞(zhuang)
某工程在(zai)施工管(guan)(guan)廊柱子結構基礎(chu)時才發現,柱子基礎(chu)與地下管(guan)(guan)道(dao)、埋地電纜(lan)等(deng)大量碰撞,只能(neng)修(xiu)改(gai)管(guan)(guan)廊柱子位置(zhi)或者修(xiu)改(gai)地下管(guan)(guan)道(dao)位置(zhi)或者修(xiu)改(gai)埋地電纜(lan)的位置(zhi),造成多個專業的設計(ji)文件大面積修(xiu)改(gai)。
建議在設計階段進行管廊柱子基礎(chu)與地(di)下(xia)管道、埋地(di)電纜碰撞(zhuang)檢查和各專業的會簽。
工程(cheng)應用(yong):管(guan)廊層高(gao)偏高(gao)引起的設計不合理(li)
某石化裝置(zhi)施(shi)工完后(hou)(hou),發(fa)現裝置(zhi)四(si)周的全廠外(wai)管(guan)廊高(gao)(gao)達25m,從遠處觀望,外(wai)管(guan)廊全部遮擋住了(le)裝置(zhi)內塔及其他設(she)備,如圖3.9所示。究其原因,發(fa)現在設(she)計時(shi),管(guan)道間(jian)(jian)距(ju)沒有按照最(zui)小(xiao)管(guan)間(jian)(jian)距(ju)設(she)計,共5層(ceng)管(guan)廊,大口徑(jing)管(guan)道分(fen)布在各(ge)個管(guan)廊層(ceng)高(gao)(gao),每(mei)層(ceng)的層(ceng)高(gao)(gao)至(zhi)少設(she)計成(cheng)了(le)3m,最(zui)大層(ceng)高(gao)(gao)設(she)計成(cheng)了(le)5m。筆者嘗試優化后(hou)(hou),這條管(guan)廊總高(gao)(gao)度(du)至(zhi)少降低8m。

工(gong)程(cheng)應用(yong):管廊柱(zhu)子偏粗的(de)不合理(li)設計
在施工(gong)現場(chang),某裝(zhuang)置管(guan)廊(lang)(A工(gong)程(cheng)公司(si)設(she)計)與鄰近裝(zhuang)置管(guan)廊(lang)(B工(gong)程(cheng)公司(si)設(she)計)直通連接時,發現管(guan)廊(lang)上的管(guan)子(zi)、電纜槽架是一(yi)樣的,管(guan)廊(lang)層高也一(yi)樣,但(dan)是,A工(gong)程(cheng)公司(si)負責設(she)計的管(guan)廊(lang)柱(zhu)子(zi)尺(chi)(chi)寸為800mm×800mm,而(er)B工(gong)程(cheng)公司(si)設(she)計的管(guan)廊(lang)柱(zhu)子(zi)尺(chi)(chi)寸僅有400mm×400mm,差距非常大。
經核對設計(ji)文件,發現A工(gong)程(cheng)公(gong)司(si)設計(ji)的載(zai)荷數據比正常偏大(da)了很多,引起了管廊柱(zhu)子偏粗的不合(he)理設計(ji)。

